Araucanía, 2019
Construido
Constructor Javier Viñuela Schweitzer





























Concebida como un refugio de
vacaciones cercano al centro de ski Corralco, la casa se emplaza en un terreno
plano, en el fondo de un valle rodeado de cerros con bosques de araucarias,
lengas y otras especies nativas, con vistas lejanas al volcán Lonquimay por el
norte y hacia la Sierra Nevada por el sur.
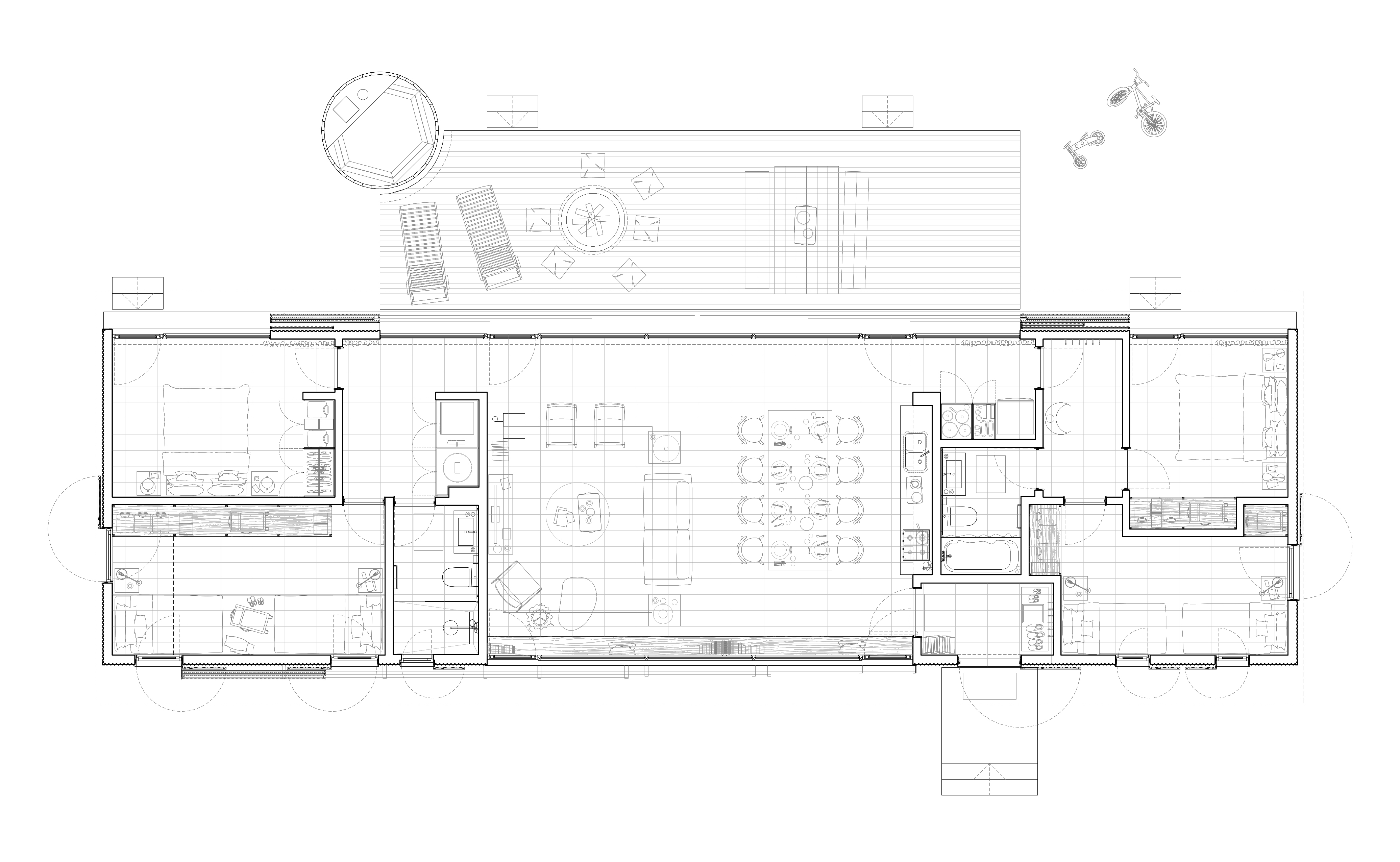
La casa se diseñó propiciando el encuentro, la vida social y la contemplación del paisaje, a través de un gran espacio central de doble orientación (norte y sur), donde se dispusieron estar, comedor y cocina. Las zonas privadas pasan a segundo plano en dos alas independiente ubicadas en los extremos oriente y poniente de la casa, una para los dueños de casa y otra para invitados. Cada ala contiene dos dormitorios y un baño.
La planta de barra alargada y la sección a dos aguas permitieron resolver aspectos programáticos y climáticos, tales como conseguir una gran luz y altura en el espacio central o evacuar correctamente la lluvia y la nieve durante el invierno. La piel exterior, completamente en metal ondulado, permite abrirse o cerrarse gradualmente en sus caras principales, controlando el ingreso de sol y calor o dejar la casa completamente cerrada cuando no está siendo habitada, como una silueta rotunda en el paisaje.
Dado el emplazamiento agresivo en términos de clima y accesibilidad, se optó por un volumen único y compacto que contiene todo el programa, con una estructura simple, de una sola sección y con repetición de piezas, lo que pudo prefabricarse en gran medida en Temuco y Curacautín, disminuyendo las faenas en terreno.
La casa se diseñó propiciando el encuentro, la vida social y la contemplación del paisaje, a través de un gran espacio central de doble orientación (norte y sur), donde se dispusieron estar, comedor y cocina. Las zonas privadas pasan a segundo plano en dos alas independiente ubicadas en los extremos oriente y poniente de la casa, una para los dueños de casa y otra para invitados. Cada ala contiene dos dormitorios y un baño.
La planta de barra alargada y la sección a dos aguas permitieron resolver aspectos programáticos y climáticos, tales como conseguir una gran luz y altura en el espacio central o evacuar correctamente la lluvia y la nieve durante el invierno. La piel exterior, completamente en metal ondulado, permite abrirse o cerrarse gradualmente en sus caras principales, controlando el ingreso de sol y calor o dejar la casa completamente cerrada cuando no está siendo habitada, como una silueta rotunda en el paisaje.
Dado el emplazamiento agresivo en términos de clima y accesibilidad, se optó por un volumen único y compacto que contiene todo el programa, con una estructura simple, de una sola sección y con repetición de piezas, lo que pudo prefabricarse en gran medida en Temuco y Curacautín, disminuyendo las faenas en terreno.
