︎
Iragüen Viñuela
press
,
info
,
works
,
insta
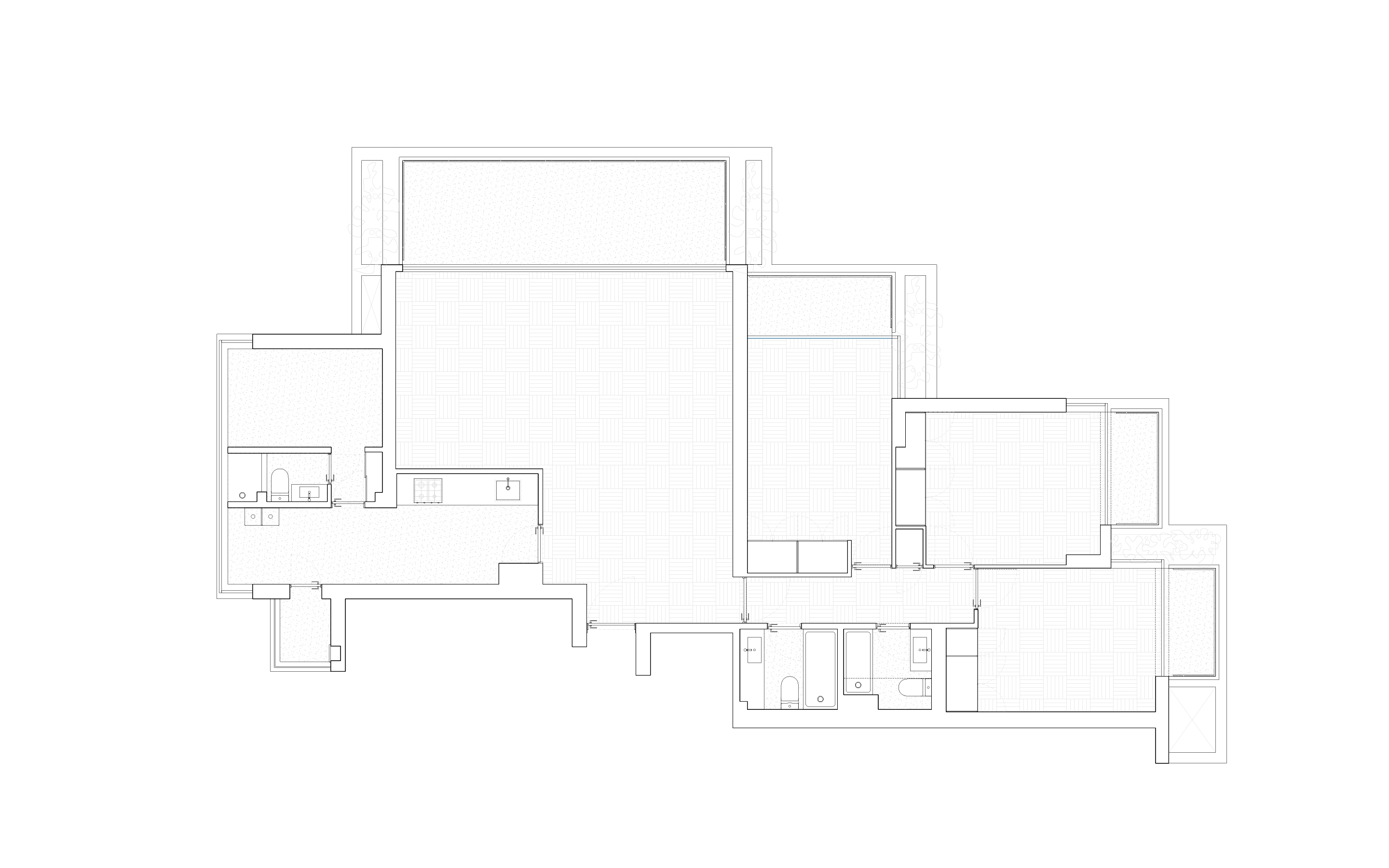
Departamento Rotonda
Vitacura, 2019
construido
Reforma completa de un departamento de los años 60 en Vitacura.
Iragüen Viñuela Arquitectos
+56 9 85011131
+56 9 75173278
/ iraguenvinuela@gmail.com