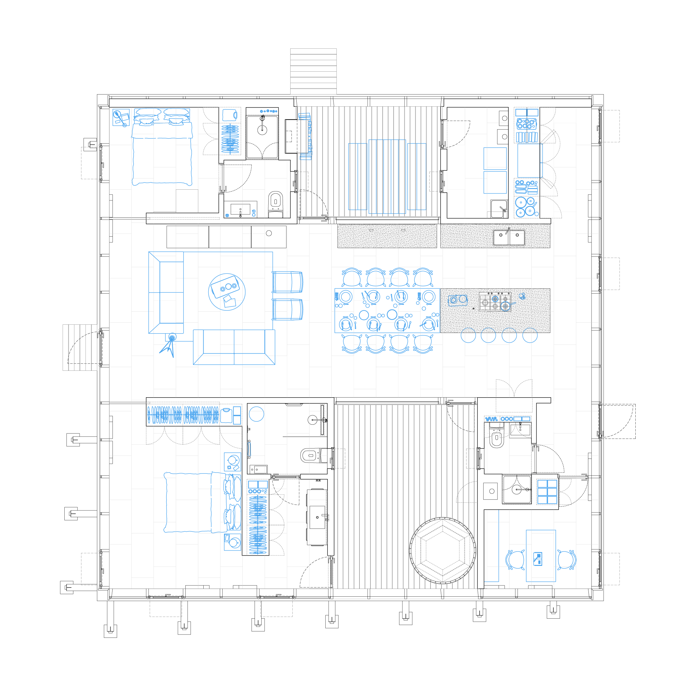
Casa SI
Algarrobo, Valparaíso, 2024
Construida

Cálculo estructural: Roberto Stocker 
Construcción: Mario Cuevas
Fotos: Pablo Casals Aguirre



ç

















































Mark


Iragüen Viñuela Arquitectos
+56 9 85011131
+56 9 75173278
/ iraguenvinuela@gmail.com